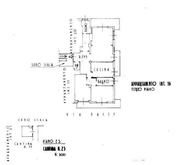
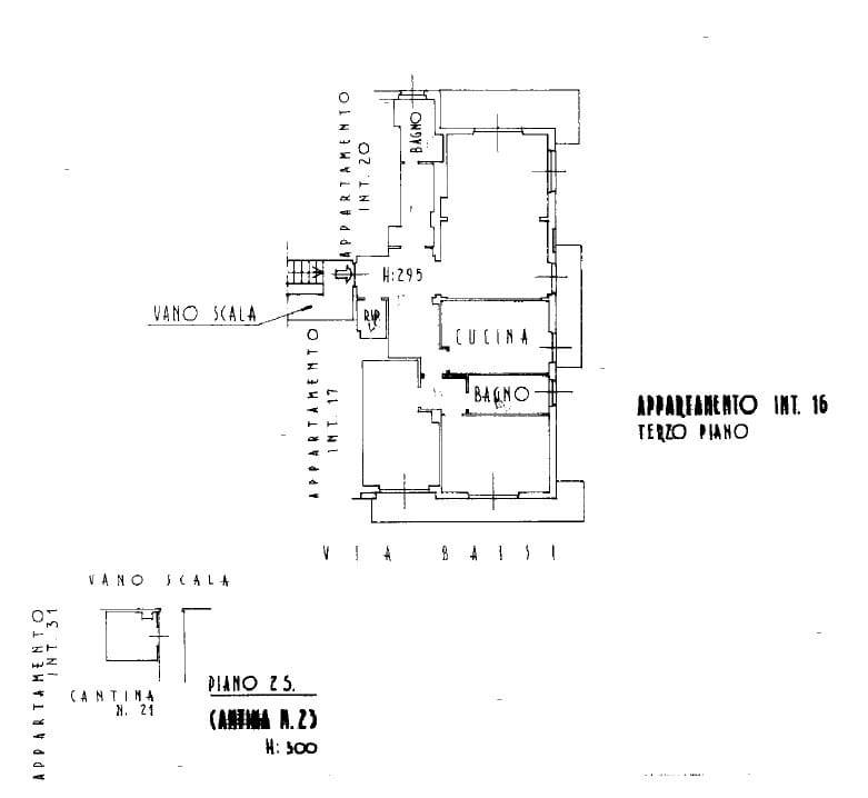
Via Baisi – Quadrilocale con Box
Via Aurelio Baisi, 16Informazioni di base
- Categoria : Vendita
- Tipo : Appartamento
- Stato : Ottimo Stato
- Camere da letto: 2
- Camere totali: 4
- Bagni: 2
- Terrazzi: Si
- Piano numero: 3
- Totale piani unità: 4
- Superficie: 130 m²
- Anno di costruzione: 1970
- Data aggiunta : Aggiunto 1 settimana fa
Descrizione
-
Descrizione:
ESCLUSIVO APPARTAMENTO CON BOX In vendita a Rapallo a 500 metri dal centro e dal lungomare con tutte le comodità e i servizi, ottimo e luminoso appartamento al 3° piano con ascensore con vista mare composto da ampia zona living con doppio soggiorno, due camere da letto, cucina abitabile, due bagni, ripostiglio e 3 balconate. Ottime condizioni e confortevolmente arredato. L’appartamento è dotato di aria condizionata autonoma e riscaldamento centralizzato. OTTIMO COME INVESTIMENTO O SECONDA CASA. Box privato ad € 40.000. Libero al rogito. Per informazioni e visite contattare Massimo Bestazza UNICO IMMOBILIARE +39 375 8468120.
BEAUTIFUL APARTMENT WITH GARAGE a well lit four-room apartment with sea view is available for sale in Rapallo, just 500 m from the center and the seafront. The property is located at 3rd floor of an elegant building. The apartment comprises a large living area with double living room, two bedrooms, a kitchen, two bathrooms, closet and 3 balconies. It is in excellent condition and is comfortably furnished, providing 7+1 beds. Equipped with independent air conditioning and central heating, the apartment also includes a private garage (€ 40.000). For further information or visits please contact Massimo Bestazza UNICO IMMOBILIARE +39 375 8468120.
Servizi e caratteristiche
- Riscaldamento: Centr.Metano
- Arredamento: Sì
- Aria condizionata: Sì
Dettagli dell'edificio
- Garage: Si
- Giardino: No
Posizione
Classe energetica
-
Classe di efficienza energetica: ABCDEFG
